Treppenfigur
Querschnitt
Anbau
Einem denkmalgeschützten Bauernhaus wird mit präzisen Eingriffen zu neuem Glanz verholfen. Durch das Weiterstricken des Holzbaus innerhalb der bestehenden Struktur wird man dem historischen Bau gerecht und verschafft ihm, inspiriert von historischen Rauchküchen, Raum und Luft. Der Wirtschaftsanbau wird als untergeordneter Baukörper im Sinne des Gesamtensembles ersetzt. Niedrig-Hoch, Alt-Neu sind hier keine Gegensätze, sondern ergänzen sich zu einem stimmigen Ganzen. Denkmalpflege als Innovation.
176_Haus Wiget
Fertigstellung
2024
Ort:
Wangen SZ
Bauherrschaft:
Privat
Architektur / Bauleitung:
JJAdM Architektur GmbH
Architekturbüro Toni Schnellmann
Aussenansicht
Situationsplan
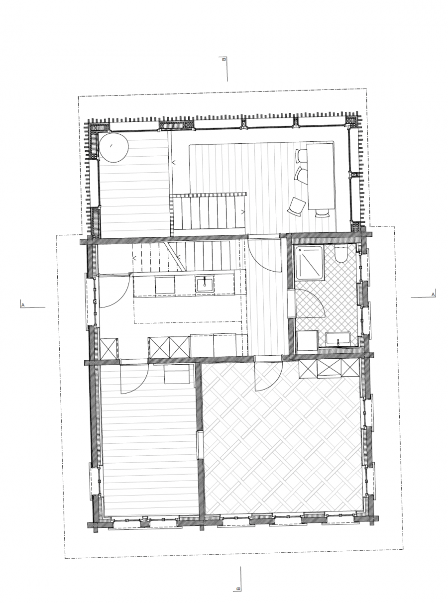
Entrée
Längsschnitt
Wohnstube
original Tür
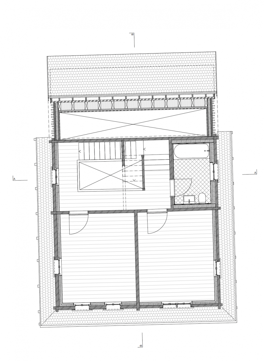
EG
Küche
Aussenansicht
OG
Eingang
DG
Einem denkmalgeschützten Bauernhaus wird mit präzisen Eingriffen zu neuem Glanz verholfen. Durch das Weiterstricken des Holzbaus innerhalb der bestehenden Struktur wird man dem historischen Bau gerecht und verschafft ihm, inspiriert von historischen Rauchküchen, Raum und Luft. Der Wirtschaftsanbau wird als untergeordneter Baukörper im Sinne des Gesamtensembles ersetzt. Niedrig-Hoch, Alt-Neu sind hier keine Gegensätze, sondern ergänzen sich zu einem stimmigen Ganzen. Denkmalpflege als Innovation.
176_Haus Wiget
Fertigstellung
2024
Ort:
Wangen SZ
Bauherrschaft:
Privat
Architektur / Bauleitung:
JJAdM Architektur GmbH
Architekturbüro Toni Schnellmann
© JJAdM Architektur GmbH I Schlossweg 9 I 6005 Luzern I info@jjadm.ch