Ansicht
EG
Situationsplan
Schema
2.OG
1.OG
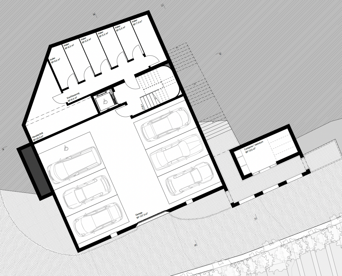
UG
Ansicht Ost
Ansicht Süd
Ansicht Nord
Querschnitt
Ansicht Ost
Schnittansicht
Eine schützenwerte Heimatstilvilla aus dem Jahre 1918 wird mit wenigen Eingriffen zu neuem 5 Parteienhaus umgestaltet. Durch das Benutzen der bestehenden Strukturen wird die historische Substanz weitgehend weiterverwendet und im Sinne von der Nachhaltigkeit weitergenutzt. Die nötigen energetischen Ertüchtigungen werden über die Dach- und Fenstersanierung gelöst. Die alten Ziegel werden weiterverwendet und die Fassade in den Ursprungszustand zurückgeführt.
174_Villa im Moos
Fertigstellung
2023
Ort:
Luzern LU
Bauherrschaft:
Privat
Architektur / Bauleitung:
JJAdM Architektur GmbH
© JJAdM Architektur GmbH I Schlossweg 9 I 6005 Luzern I info@jjadm.ch